17 sierpnia 2017 roku podpisano umowy z wykonawcami nowej drogi ekspresowej S7 (czytaj więcej).
Termin realizacji to wiosna 2021 rok, więc za niecałe 3 lata dojazd do centrum Warszawy skróci się do ok. 15 minut.
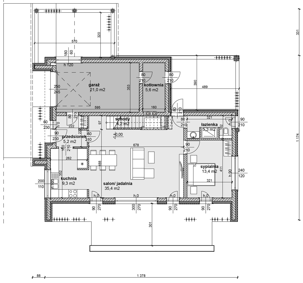
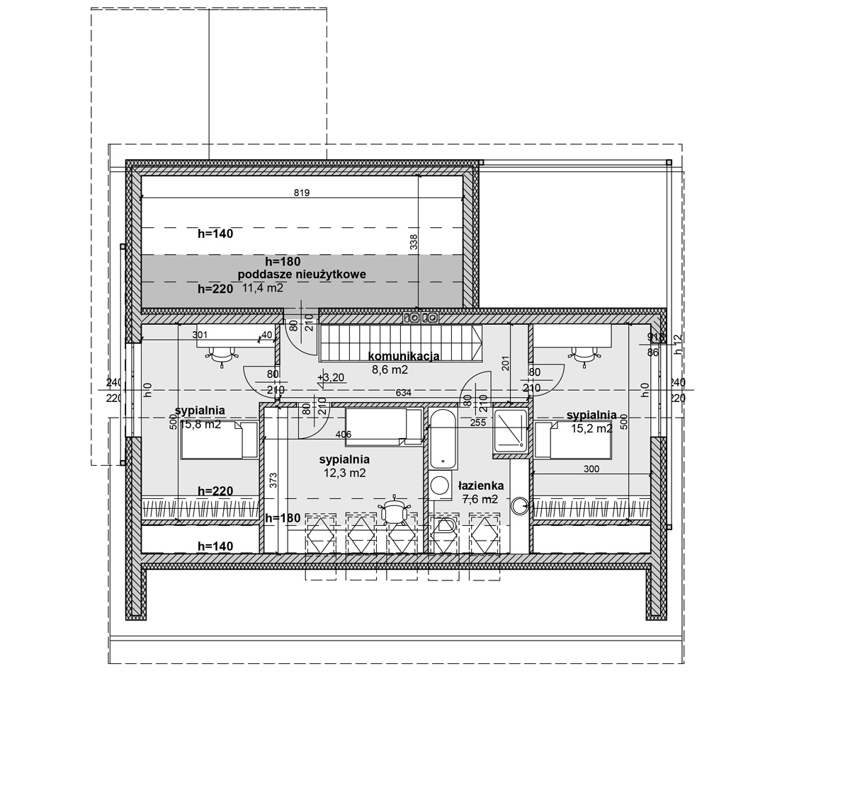
Domy mieszczą się w optymalnej odległości od węzła zapewniając ciszę i spokój na działce z jednoczesnym kilkuminutowym dojazdem do trasy S7.



















































































